Descrição
LOJA 1: 467,33m2 - Aluguel R$ 42,100,00 - Venda: R$ 5.608.000,00 - IPTU R$ 4.674,00
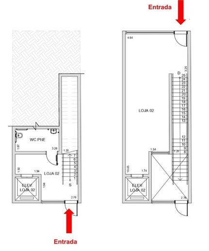
LOJA 2 - 78,84m2 - Aluguel R$ 7.100,00 - Venda - R$ 946.100,00 - IPTU R$ 789,00
(VER PLANTAS NAS FOTOS)
CONDOMINIO: Para as 2 Lojas praticamente zero apenas pequenas taxas.
Prédio com cada uma das entradas principais servidas por duas lojas, sendo a Loja 1 localizada com acesso pela Avenida Pompeia e a Loja 2 na Rua Padre Agostinho Mendicute.
Ao lado do acesso pela Avenida Pompeia existe uma vaga disponível para PNE e uma vaga de utilitários para clientes da loja.
O edifício está localizado próximo à Vila Madalena, um dos bairros badalados de São Paulo. Conta com boa mobilidade, segurança e diversas opções de lazer.
O metrô Vila Madalena se encontra a 250 metros do empreendimento (cerca de 3 minutos).
CARACTERÍSTICAS DO CONDOMÍNIO
As lojas fazem parte de um condomínio composto por 28 pavimentos com 225 apartamentos. Os acessos das lojas e apartamentos são totalmente apartados
VAGAS: Para cada Loja 1 vaga para PNE e 1 vaga para utilitários, localizadas no 1º subsolo, e 3 vagas para motocicletas, localizadas no 1º subsolo e térreo, são de uso comum dos apartamentos não residenciais/serviços de moradia e lojas
Características
Características do Imóvel
Localização
Mais Informações